改良住宅とは、住宅地区改良法(1960年(昭和35年)以降)により建設された住宅のことです。
入居予定者全員の総所得金額(過去1年間における所得税法によって算出した所得額)から扶養控除(同居親族1人につき38万円)等を控除した額を12で割った額(所得月額)が、一般の世帯であれば11万4千円以下であること、高齢者や身体障害者のいる世帯等では13万9千円以下であることが条件です。
住 所
下関市山の田北町1番
最寄交通
北町1丁バス停まで徒歩4分
(建物出入口より270m)
山の田バス停まで徒歩4分
(建物出入口より300m)
学校区
市立山の田小学校 / 市立山の田中学校
駐車場
1戸に1台(800円/月)
共益費
共用施設維持管理に必要な経費、自治会費
敷 金
当初家賃の3ヶ月分 ※礼金:無
| 棟 名 | 13棟 | ||
|---|---|---|---|
| 竣工年度 | 1997(H09) | ||
| 構造等 | 高層耐火構造7階建・エレベータ有 | ||
| 住戸面積 | 53.3㎡ | 69.7㎡ | 70.4㎡ |
| 間 取 | 2DK | 3LDK | 3LDK |
| 戸 数 | 6戸 | 18戸 | 6戸 |
| 月額家賃 | 18,700円~24,700円 | 24,500円~32,300円 | 424,700円~32,700円 |
外観図

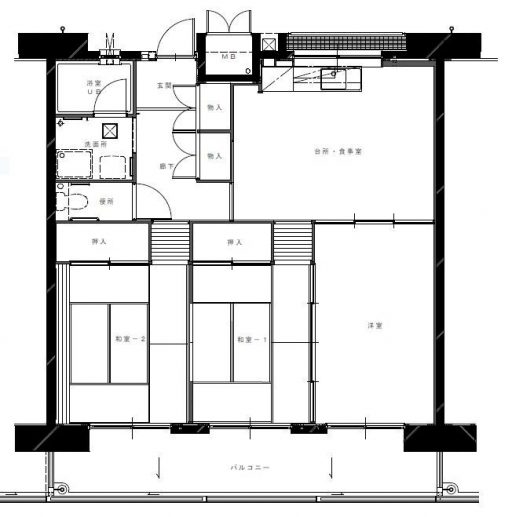
代表的な間取り図(3LDKの例)

また、間取図は反転表示している場合があります。
【窓口】山口県施設管理財団県営住宅管理事務所 山口支所(電話番号 083-934-2004)