住所
山口市宮野下822番地2
最寄交通
折本バス停まで徒歩11分~12分
(建物出入口から850m~950m)
下恋路バス停まで徒歩6分~7分
(建物出入口から450m~550m)
学校区
市立宮野小学校 / 市立宮野中学校
駐車場
1戸に1台まで(500円/月)
共益費
共用施設維持管理に必要な経費、自治会費
敷 金
家賃の3ヶ月分
| 建築年度 | 2006~2009 | |||
|---|---|---|---|---|
| 構造等 | 中耐3階建・エレベータ有 | |||
| 住戸専有面積 | 43.8㎡ | 55.5~55.7㎡ | 65.1~65.9㎡ | 72.4~73.1㎡ |
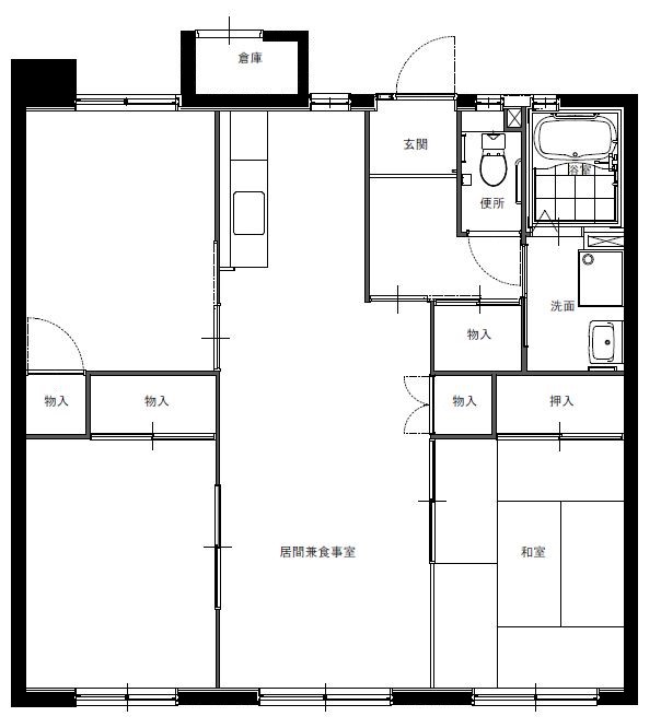
| 間 取 | 1DK | 2DK | 3DK | 3LDK |
| 戸 数 | 69戸 | |||
外観図

代表的な間取り図(3DKの例)

【窓口】山口県施設管理財団県営住宅管理事務所 山口支所(電話番号:083-934-2004)