住所

周南市新堤町7番47号

最寄交通

中溝バス停まで徒歩1分
(建物エントランスまで80m)

学校区

市立富田小学校 / 市立富田中学校

駐車場

1戸に1台まで(1,000円/月)

共益費

共用施設維持管理に必要な経費、自治会費

敷 金

家賃の3ヶ月分

建築年度1997
構造等 高層7階建・エレベータ有
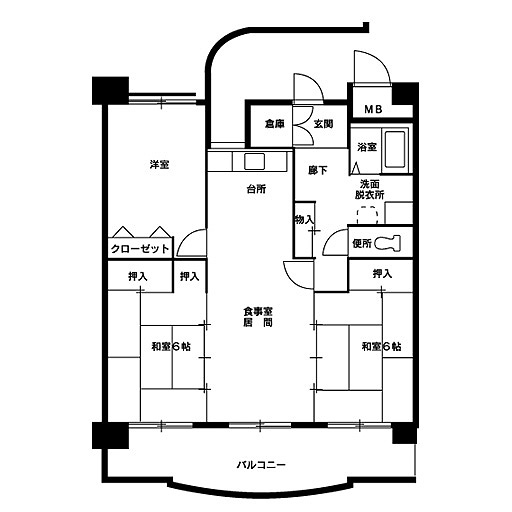
住戸専有面積 73.7㎡
間 取 3LDK
戸 数 28戸

外観図

代表的な間取り図(3LDKの例)

ご注意:上記間取図は、設計時の計画図面であり、完成時では若干の変更をしている場合があります。 また、反転表示している場合があります。

【窓口】山口県施設管理財団県営住宅管理事務所 周南支所(電話番号:0834-27-6780)